ГН 2.2.5.1313-03 «Предельно допустимые концентрации (ПДК) вредных веществ в воздухе рабочей зоны».
ГН 2.2.5.2308-07 «Ориентировочные безопасные уровни воздействия (ОБУВ) вредных веществ в воздухе рабочей зоны».
ГН 2.1.6.1338-03 Предельно допустимые концентрации (ПДК) загрязняющих веществ в атмосфере воздуха населенных мест.
V Доступность метрополитена для инвалидов и маломобильных групп населения
(обязательное)
СП 59.13330.2011 «Доступность зданий и сооружений для маломобильных групп населения» Актуализированная редакция СНиП .
СП «Проектирование зданий и сооружений с учетом доступности для маломобильных групп населения. Общие положения» (одобрен постановлением Госстроя России от 01.01.2001 г. № 70).
СП «Общественные здания и сооружения, доступные маломобильным посетителям» (одобрен и рекомендован к применению постановлением Госстроя России от 01.01.2001 г. № 72).
Постановление Правительства Москвы от 01.01.2001 г. «Об утверждении Норм и правил проектирования комплексного благоустройства на территории города Москвы МГСН 1.02-02».
ГОСТ Р «Указатели тактильные наземные для инвалидов по зрению» (утвержден и введен в действие приказом Федерального агентства по техническому регулированию и метрологии от 01.01.2001 г. ).
ГОСТ Р «Платформы подъемные с вертикальным и наклонным перемещением для инвалидов. Технические требования доступности» (принят и введен в действие Постановлением Госстандарта РФ от 01.01.2001 N 195-ст).
ГОСТ Р «Лифты пассажирские. Технические требования доступности, включая доступность для инвалидов и других маломобильных групп населения» (утвержден и введен в действие приказом Федерального агентства по техническому регулированию и метрологии от 01.01.2001 г. ).
ГОСТ Р «Устройства опорные стационарные реабилитационные» (принят и введен в действие постановлением Госстандарта России от 01.01.2001 г. № 000).
ГОСТ Р «Устройства отображения информации по системе шрифта Брайля. Общие технические условия» (принят и введен в действие постановлением Госстандарта России от 01.01.2001 г. № 000).
ГОСТ Р «Средства связи и информации технические общего пользования, доступные для инвалидов. Классификация. Требования доступности и безопасности» (принят и введен в действие постановлением Госстандарта России от 01.01.2001 г. ).
ПБ Правила устройства и безопасной эксплуатации платформ подъемных для инвалидов.
ПБ Правила устройства и безопасной эксплуатации лифтов.
МДС 35-9.2000 «Рекомендации по проектированию окружающей среды, зданий и сооружений с учетом потребностей инвалидов и других маломобильных групп населения».
Общественные здания и сооружения. Здания и сооружения транспортного назначения (Госстрой России, Минсоцзащиты России, АО ЦНИИЭП им. ).
Пособие по комплексному проектированию окружающей среды для людей с физическими ограничениями. Доступный транспорт (утверждено и введено в действие указанием Москомархитектуры № 10 от 01.01.2001 г.).
VI Инструктивные материалы
(рекомендуемое)
[1] СП Метрополитены. Дополнительные сооружения и устройства.
[2] СП Инженерно-геологические изыскания для строительства. Часть 1. Общие правила производства работ.
[3] СП Инженерно-экологические изыскания для строительства.
[4] Инструкция по сигнализации на метрополитенах Российской Федерации.
[5] Правила технической эксплуатации метрополитенов Российской Федерации.
[6] ВСН 132-92 Правила производства и приёмки работ по нагнетанию растворов за тоннельную обделку.
[7] СТО-ГК «Трансстрой» Траншейная стена в грунте. Конструкция и технология сооружения для объектов транспортного строительства.
[8] ВСН-193-81 Инструкция по учёту сейсмических воздействий при проектировании горных транспортных тоннелей.
[9] ВСН 130-92 Правила производства и приёмки работ по герметезации стыков и отверстий сборной тоннельной обделки при закрытом способе строительства.
[10] СН 484-76 Инструкция по инженерным изысканиям в горных выработках, предназначенных для размещения объектов народного хозяйства.
[11] Технические указания по устройству, укладке и содержанию бесстыкового пути, утверждённые МПС России 03.10.91 г.
[12] НПБ 239-97 Воздуховоды. Метод испытаний на огнестойкость.
[13] СП Проектирование тепловых пунктов.
[14] ТУ 8 Трубы чугунные напорные ВЧШГ.
[15] ПУЭ Правила устройства электроустановок.
[16] РД 153-34.0-20.527-98 Руководящие указания по расчёту токов короткого замыкания и выбору электрооборудования.
[17] СП Метрополитены.
[18] СП 2.5.2623-10 Санитарные правила эксплуатации метро.
[19] Рекомендации по проектированию и эксплуатации осветительных установок пассажирских помещений станций метрополитена. – М.: МНИИТЭП, 1989.
[20] КСЦ Метро-2 Отраслевые нормы искусственного освещения производственных объектов и подвижного состава метрополитенов. ВНИИЖТ, 1987 г.
[21] СТН Ц-01-95 Железные дороги колеи 1520 мм.
[22] СП 12.13130.2009 Определение категорий помещений, зданий и наружных установок по взрывопожарной и пожарной опасности.
[23] СП 3.5.3.1029-02 Санитарно-эпидемиологические требования к проведению дератизации.
[24] Методические указания по производству микроклиматических обследований в период изысканий. – М.: Гидрометеоиздат, 1968.
[25] ОНД-1-84 Инструкция о порядке рассмотрения, согласования и экспертизы воздухоохранных мероприятий и выдачи разрешений на выброс загрязняющих веществ.
[26] СП Определение основных расчётных гидрологических характеристик.
[27] МГСН 1.02-02 Нормы и правила проектирования комплексного благоустройства на территории города Москвы.
[28] Методики оценки природной защищённости эксплуатируемых водоносных горизонтов. – М.: ВСЕГИНГЕО, 1972.
[29] Временные правила охраны окружающей среды от отходов производства и потребления в Российской Федерации. – М.: Минприроды России, 1994.
[30] ВСН 211-91 Инструкция по прогнозированию уровней вибрации грунта от движения поездов метрополитена и расчёт виброзащитных строительных устройств.
[31] СП Оценка шума при проектировании, строительстве и эксплуатации объектов метрополитена.
[32] СП Оценка вибрации при проектировании, строительстве и эксплуатации объектов метрополитена.
[33] СП Пути наземные рельсовые крановые. Проектирование, устройство и эксплуатация.
[34] Инструкция по устройству гидроизоляции сборных железобетонных и чугунных обделок тоннелей метрополитенов закрытого способа работ. М.: Главтоннельметрострой, 1985.
[35] ПБ Единые правила безопасности при взрывных работах.
[36] Рекомендации по проектированию и сооружению опережающего экрана из труб с применением микротоннелепроходческих комплексов при строительстве тоннелей. Тоннельная Ассоциация России, 1999.
[37] СТО-ГК «Трансстрой» Нагельное крепление котлованов и откосов в транспортном строительстве.
[38] РД Инструкция о порядке ликвидации и консервации подземных сооружений, не связанных с добычей полезных ископаемых.
[39] ПБ Правила безопасности при строительстве подземных сооружений.
[40] СП Авторский надзор за строительством зданий и сооружений.
[41] Правила использования территорий технических и охранных зон метрополитена в городе Москве. Правительство Москвы.
[42] Инструкция по нивелированию I, II, III. IV классов. – М.: Недра, 1990.
[43] 07-02-ПД9 Методическое руководство по комплексному горно-экологическому мониторингу при строительстве и эксплуатации транспортных тоннелей.
[44] ВСН 126-90 Нормы проектирования и производства работ по креплению выработок набрызг-бетоном и анкерами при строительстве транспортных тоннелей и метрополитенов.
[45] ВСН 127-91 Инструкция по проектированию и производству работ по искусственному понижению уровня грунтовых вод при сооружении тоннелей и метрополитенов.
[46] СО 153-34.21. Инструкция по устройству молниезащиты зданий, сооружений и промышленных коммуникаций.
[47] ПБ Правила устройства и безопасной эксплуатации грузоподъёмных кранов.
[48] Наставление производителю работ и строительному мастеру. Укладка пути и контактного рельса метрополитена. Минтрансстрой СССР, 1971.
[49] ПР 32ЦШ 10.02-96 Правила по монтажу устройств СЦБ.
[50] ПР 32 ЦШ 10.01-95 Правила по прокладке и монтажу кабелей устройств СЦБ.
[51] ОСТН-600-93 Отраслевые строительно-технические нормы на монтаж сооружений, устройств связи, радиовещания и телевидения.
[52] ПБ Правила устройства и безопасной эксплуатации эскалаторов.
[53] ПБ 10-558 Правила устройства и безопасной эксплуатации лифтов.
[54] ПОТ Р М/РД 153-34.0-03.150-00 Межотраслевые правила по охране труда (правила безопасности) при эксплуатации электроустановок.
[55] СП Проектирование и монтаж трубопроводов систем водоснабжения и канализации из полимерных материалов. Общие требования.
[56] РД 34.45.-51.300-97 Объём и нормы испытания электрооборудования.
[57] ОСТ 45.62-97 Линейное оборудование абонентских линий учрежденческо-производственных автоматических станций. Нормы эксплуатационные. Минсвязи России.
[58] Нормы искусственного освещения при строительстве тоннелей и метрополитенов. Минтрансстрой, 1989.
[59] ВСН 104-93 Нормы по проектированию и устройству гидроизоляции тоннелей метрополитенов, сооружаемых открытым способом.
[60] РД Порядок проведения проверок при осуществлении государственного строительного надзора и выдачи заключений о соответствии построенных, реконструированных, отремонтированных объектов капитального строительства требованиям технических регламентов (норм и правил), иных нормативных правовых актов и проектной документации.
[61] ВСН 160-69 Инструкция по геодезическим и маркшейдерским работам при строительстве транспортных тоннелей.
[62] ПБ Правила устройства и безопасной эксплуатации сосудов, работающий под давлением.
[63] СП 7.13130.2009 Отопление вентиляция и кондиционирование. Противопожарные требования.
[64] СП 8.13130.2009 Источники наружного противопожарного водоснабжения. Требования пожарной безопасности.
[65] СП 10.13130.2009 Внутренний противопожарный водопровод. Требования пожарной безопасности.
[66] ВСН 190-78 Инструкция по инженерно-геологическим изысканиям для проектирования и строительства метрополитенов, горных железнодорожных и автодорожных тоннелей.
ПРИЛОЖЕНИЕ Б
(справочное)
Термины и определения, сокращения
В настоящих нормах применяют следующие термины с соответствующими определениями.
Примечание - перечень терминов и определений и обозначений представлен в алфавитном порядке.
Термины и определения
Автоматизированное рабочее место диспетчера - комплекс технических средств, позволяющих диспетчеру соответствующих подразделений метрополитена управлять оборудованием и получать достоверную информацию о его техническом состоянии в любое время.
Вентиляционно-кабельный канал - помещение (см. вентиляционный канал), используемое также для размещения в нем кабелей.
Вентиляционный канал - помещение (тоннель, отсек, коридор, ствол шахты и др.) со свободным проходом по всей длине, используемое в качестве воздуховода в системах тоннельной вентиляции.
Вентиляционный киоск (венткиоск, киоск) - отдельно расположенное или встроенное сооружение на поверхности земли, используемое в вентиляционных системах для забора или выброса воздуха.
Визуальные средства информации – носители информации в виде зрительно различимых текстов, знаков, символов, световых сигналов и т. п., передаваемых в том числе людям с нарушением функций органов слуха.
Воздушный промежуток контактного рельса - зона, где контактный рельс разделяется на отдельные секции.
Вход адаптированный – вход, приспособленный для прохода маломобильных посетителей, в том числе на креслах-колясках.
Гальваническая связь - наличие непрерывной связи по металлу в строительных конструкциях, в проводниках электрических сетей и др.
Гальваническое разделение - отсутствие непрерывной связи по металлу в строительных конструкциях, в проводниках электрических сетей и др.
Доступность (безбарьерность) – свойство здания, помещения, места обслуживания, позволяющее беспрепятственно достичь места и воспользоваться услугой.
Доступные для МГН здания и сооружения – здания и сооружения, в которых реализован комплекс архитектурно-планировочных, инженерно-технических, эргономических, конструкционных и организационных мероприятий, отвечающих нормативным требованиям по обеспечению доступности и безопасности МГН.
Заложение линии:
глубокое заложение - заложение линии на глубине, при которой станции и перегонные тоннели сооружаются закрытым способом, без вскрытия дневной поверхности;
мелкое заложение - заложение линии на глубине, при которой станции сооружаются открытым способом, перегонные тоннели - открытым или закрытым способом на минимально допустимой глубине.
Зона безопасности – зона (полоса) у края функционального элемента (площадки), предназначенная для предотвращения травмо-опасных ситуаций.
Зона коллективной защиты пассажиров - отдельное подземное помещение для размещения пассажиров при возникновении в перегонных тоннелях чрезвычайной ситуации, угрожающей жизни или здоровью пассажиров, оборудованное отдельными системами пожарной безопасности, освещения, связи, вентиляции и канализации.
Источник бесперебойного питания - электроустановка, состоящая из агрегата бесперебойного питания, включающего аккумуляторную батарею и преобразователи электроэнергии, и распределительных устройств.
Кабельное сооружение (кабельный тоннель коллектор, коридор, этаж, шахта, отсек, камера) - сооружение со свободным проходом по всей длине, предназначенное для размещения в них кабелей и кабельных муфт.
Линия метрополитена (линия) - автономная часть метрополитена со станциями, перегонами и тупиками, предназначенная для движения поездов по одному маршруту.
Маломобильные группы населения (МГН) – люди, испытывающие затруднения при самостоятельном передвижении, получении услуги, необходимой информации или при ориентировании в пространстве. К маломобильным группам населения относятся: инвалиды, люди с временным нарушением здоровья, беременные женщины, люди старших возрастов, люди с детскими колясками и т. п.
Метрополитен - вид электрифицированного городского внеуличного (подземного, наземного, надземного) пассажирского транспорта.
Объект строительства (объект) - сооружение или группа сооружений, объединяемых единым функциональным назначением или технологическим процессом, строительство которого выполняется по разработанной и утвержденной в установленном порядке проектной документации.
Опасные производственные объекты - объекты, на которых используются, транспортируются и хранятся взрывчатые вещества; используются стационарно установленные грузоподъемные механизмы и эскалаторы; ведутся горные работы, а также работы в подземных условиях.
Особо охраняемая природная территория - территория города с расположенными на ней природными объектами, имеющими особое природоохранное, научное, культурное, эстетическое, рекреационное и оздоровительное значение, на которой в соответствии с законодательством установлен режим особой охраны. К таким территориям относятся национальный парк, природный заказник, городской лес или лесопарк, водоохранная зона и др.
Охранная зона - участок городской территории, расположенный над действующим подземным сооружением метрополитена и в непосредственной близости от него, возможность использования которого для нового строительства, прокладки дорог, коммуникаций, бурения скважин и т. п. должна согласовываться с администрацией метрополитена.
Пандус – сооружение, имеющее наклонную по направлению движения поверхность и предназначенное для перемещения с одного уровня горизонтальной поверхности пути на другой.
Пассажирооборот – количество пассажирских перевозок в единицу времени.
Пассажиропоток – количество пассажиров, которые проезжают или проходят через данное сечение на пути следования в одну или в обе стороны в единицу времени.
Пассажирский конвейер - транспортная установка, представляющая собой непрерывно движущуюся поверхность из пластин или сплошной ленты для транспортирования пассажиров на одном уровне или с одного уровня на другой.
Пассажирское помещение - объемно-планировочные элементы станции (кассовый и эскалаторный зал, переходные коридоры и эскалаторные тоннели, лестницы, платформенные залы и др.), предназначенные для передвижения и пребывания пассажиров.
Перекрываемый (неперекрываемый) ВПКР - промежуток между двумя участками контактного рельса, длина которого меньше (больше) расстояния между токоприемниками одного вагона.
Пересадочное сооружение - сооружение между станциями, предназначенное для перехода пассажиров с одной станции на другую, включающее пассажирские помещения (коридоры), эскалаторы и лестницы, производственные и бытовые помещения.
Подъемное устройство (платформа) – стационарная грузоподъемная машина периодического действия для подъема и спуска пользователей, размещающихся на платформе. Платформы с вертикальным перемещением - под углом не более 15°, платформы с наклонным перемещением - под углом не более 75°.
Полоса движения - часть пешеходного пути, предназначенная для движения в один ряд в одном направлении,
Пошерстное (противошерстное) движение поезда - движение поезда по стрелочному переводу в направлении от крестовины к остряку (от остряка к крестовине).
Провозная способность - объем пассажирских перевозок (тыс. пассажиров в час) при максимально возможных размерах движения (число вагонов в поезде и поездов в час).
Пропускная способность - размер движения (пар поездов), который может быть выполнен за единицу времени (час, сутки) в зависимости от технической оснащенности и способа организации движения поездов; расчетное число пассажиров для различных участков пути их движения.
Пусковой комплекс - участок линии, часть станции, электродепо или другого объекта метрополитена совместно с их инженерными системами, выделяемый из состава объекта строительства, способный обеспечивать временное функционирование сооружения в первый период эксплуатации.
Пути линии:
главные - пути для обращения поездов с пассажирами на перегонах и станциях;
станционные - пути для оборота поездов, отстоя и технического обслуживания подвижного состава;
соединительные - пути для соединения путей линии с путями электродепо или путями другой линии;
предохранительные - тупиковые пути, предназначенные для предотвращения выхода подвижного состава на маршруты следования поездов.
Пути электродепо:
парковые - пути для проведения маневров, обкатки подвижного состава, погрузки и выгрузки грузов, расположенные вне зданий;
деповские - пути для отстоя, технического обслуживания и ремонта подвижного состава, расположенные в зданиях.
Путь движения - пешеходный путь, используемый МГН, в том числе инвалидами на креслах-колясках, для перемещения по участку (дорожки, тротуары, пандусы и т. д.), а также внутри зданий и сооружений.
Сильноточная (слаботочная) сторона тоннеля - сторона тоннеля, находящаяся слева (справа) по отношению к движущемуся в правильном направлении поезду.
Система гарантированного электроснабжения – электороустановка состоящая из устройства АВР, агрегата бесперебойного питания, включающего аккумуляторную батарею, преобразователи электроэнергии и распределительное устройство.
Система средств информации (информационные средства) – совокупность носителей информации, обеспечивающих для МГН своевременное ориентирование в пространстве, способствующих безопасности и удобству передвижения.
Среда жизнедеятельности – материальная среда, окружающая человека, в которой или при помощи которой он осуществляет все свои жизненные потребности, в том числе здания и сооружения, их оборудование, оснащение и прилегающая территория.
Станция – подземный, надземный или наземный остановочный пункт, предназначенный для посадки и высадки пассажиров, включающий вестибюли, эскалаторы или лестницы, платформенные и средний залы, помещения для обслуживания пассажиров, размещения эксплуатационного персонала и производственного оборудования.
Тактильное покрытие – покрытие с ощутимым изменением фактуры поверхностного слоя.
Тактильные средства информации - носители информации, передаваемой инвалидам по зрению и воспринимаемой путем осязания, т. е. прикосновением к ним.
Теплый период года (для подземных сооружений) - время года, в течение которого среднемесячные температуры наружного воздуха выше или равны естественной температуре грунта, измеренной до начала эксплуатации метрополитена.
Технические зоны:
техническая зона для строительства - городская территория, отводимая в соответствии с генеральным планом развития города для последующего строительства участков линии метрополитена открытым способом, для размещения электродепо и других наземных сооружений, а также строительных площадок при строительстве объектов метрополитена закрытым способом;
техническая зона для эксплуатации - свободный участок городской территории, непосредственно примыкающий к объекту метрополитена и используемый для обеспечения нормального функционирования объекта (входа и выхода пассажиров, размещения ремонтных машин, оборудования и материалов в период ремонтных работ).
Техническое средство реабилитации человека с ограничениями жизнедеятельности – любая продукция, инструмент, оборудование или технологическая система, используемые человеком с ограничением жизнедеятельности и обладающие специальными свойствами, которые позволяют предотвратить, компенсировать, ослабить или нейтрализовать ограничение жизнедеятельности.
Тупик - тоннель с одним или двумя станционными путями для оборота, отстоя и технического обслуживания подвижного состава на линии.
Тяговая сеть - электрическая сеть, обеспечивающая подвод электроэнергии от подстанции к электроподвижному составу. В состав тяговой сети входят:
контактная сеть - контактный рельс, кабельные питающие линии, кабельные перемычки между участками контактного рельса, устройства присоединения кабелей к контактному рельсу;
отсасывающая сеть - ходовые рельсы, дроссель-трансформаторы, электрические соединители участков ходового рельса одного пути (проводом) и ходовых рельсов разных путей (кабелями или проводами), кабельные отсасывающие линии.
Установка местной вентиляции - установка, предназначенная для вентиляции производственных, бытовых, административных и других помещений подземных станций и притоннельных сооружений.
Установка тоннельной вентиляции - установка, предназначенная для вентиляции пассажирских помещений подземных станций, перегонных, тупиковых и соединительных тоннелей.
Холодный период года (для подземных сооружений) - время года, в течение которого среднемесячные температуры наружного воздуха ниже естественной температуры грунта, измеренной до начала эксплуатации метрополитена.
Эвакуационный выход - путь выхода пассажиров наружу или в безопасную зону при возникновении на платформе станции или в перегонных тоннелях чрезвычайной ситуации, угрожающей жизни или здоровью пассажиров.
Сокращения
АБ - аккумуляторная батарея или автоматическая блокировка (в зависимости от содержания текста)
АБК - административно-бытовой корпус (в электродепо)
АВР - устройство автоматического включения резерва
АЗС - автозаправочная станция
АКП - автоматический контрольный пункт
АРМ – автоматизированное рабочее место диспетчера
АРМ – Д - движения;
АРМ – Э - электроснабжения
АРМ – ЭМС - электромеханической службы;
АРМ – ЭС - эскалаторной службы;
АРС - автоматическое регулирование скорости (поездов)
АСОП - автоматизированная система оплаты проезда
АТДП – автоматика и телемеханика управления движением поездов
АТС - автоматическая телефонная станция
АУПС - автоматическая установка пожарной сигнализации
АУПТ - автоматическая установка пожаротушения
БВР - буровзрывные работы
БТП – блок технологических помещенмй
ВЗ - воздушная завеса
ВКУ - видеоконтрольное устройство
ВОУ - водоотливная установка
ВПКР - воздушный промежуток контактного рельса
ВТЗ - воздушно-тепловая завеса
ВЦ - вычислительный центр
ГГО - громкоговорящее оповещение
ГГС - громкоговорящая связь
ГЖ - горючие жидкости
ГСМ - горюче-смазочные материалы
ДП - диспетчерский пункт
ДПД - диспетчерский пункт движения (поездов)
ДПЛ - диспетчерский пункт линии (метрополитена)
ДПС - диспетчерский пункт станции
ДПЭ - диспетчерский пункт электроснабжения
ДТ - дроссель-трансформатор
ДЦ - диспетчерская централизация
ИБП - источник бесперебойного питания
ИТП – индивидуальный тепловой пункт
КЗ - короткое замыкание
КИП - контрольно-измерительный пункт
ЛАЦ - линейно-аппаратный цех
ЛВЖ - легковоспламеняемые жидкости
МБ - местная батарея
МК - металлоконструкции
НАТМ - новоавстрийский тоннельный метод (строительства)
ОБУВ - ориентировочный безопасный уровень воздействия
ОДК – оперативный дистанционный контроль
ОРК - отстойно-ремонтный корпус
ОС - охранная сигнализация
ОТДВ – особо тонкодисперсное вещество
ОТС - оперативно-технологическая связь
ОУ - осветительная установка
П – стадия проектирования - Проект
ПА - преобразовательный агрегат
ПВС - пункт восстановительных средств
ПДВ - предельно допустимые выбросы
ПДЗ - противодымная защита
ПДК - предельно допустимая концентрация
ПЗА - показатель загрязнения атмосферы
ПОС - проект организации строительства
ПП - понизительная подстанция
ППИ - платформа подъемная для инвалидов
ППР - проект производства работ
ПРА – пускорегулирующая аппаратура
ПТО - пункт технического обслуживания (подвижного состава)
ПЯ - путейский ящик
Р – стадия проектирования - Рабочая документация
РП - распределительный пункт
РУ - распределительное устройство
РЦ - рельсовая цепь
СГЭ – система гарантированного электроснабжения
СИРБД - система интервального регулирования и безопасности движения поездов
СКУД – система контроля и управления доступом
СМР - строительно-монтажные работы
СНС - спутниковая навигационная система
СОУЭ - система оповещения и управления эвакуацией людей
СПК - суммарный показатель концентрации
СУРС - система управления работой станции с применением технических средств
Т - тяговая подстанция
ТБО - твердые бытовые отходы
ТВР - тепловлажностный режим
ТО - техническое обслуживание
ТПП - тяговопонизительная подстанция
ТР - текущий ремонт
ТУ - технические условия
УЗО - устройство защитного отключения
УКПТ - устройство контроля прохода в тоннель
УМВ - установка местной вентиляции
УП - установка пожаротушения
УТВ - установка тоннельной вентиляции
ЦСП - цифровая система передачи
ЭМИ РД - электромагнитное излучение радиодиапазона
ЭМС - электромеханическая служба
ЭМУ - электромеханическая установка
ЭЦ - электрическая централизация
ПРИЛОЖЕНИЕ В
(рекомендуемое)
Система управления работой станции (сурс)
1 Назначение
1.1 Система представляет собой комплекс технических средств для автоматизированного управления установками и устройствами, обеспечивающими нормальное функционирование станции, включая обслуживание пассажиров и организацию движения поездов, с использованием средств теленаблюдения, связи, дистанционного управления и контроля.
1.2 Управление техническими средствами осуществляется из диспетчерского пункта станции дежурным по станции (диспетчером), обеспечивающим регулирование пассажиропотоков и организацию движения поездов в границах станции, контроль за обстановкой, состоянием помещений и установок на станции и в прилегающих перегонных тоннелях.
2 Функции, размещение устройств, требования к помещениям
2.1 СУРС должна обеспечивать выполнение следующих функций:
- организацию пассажиропотоков и оперативное управление работой станции с использованием теленаблюдения, средств связи и громкоговорящего оповещения;
- остановку и контроль работы эскалаторов;
- управление установками вентиляции, отопления и водоснабжения;
- контроль работы водоотливных и канализационных установок;
- управление группами освещения станции и перегонных тоннелей;
- управление сетями электрообогрева ступеней лестничных спусков в подуличные переходы на входах в подземные вестибюли станции;
- управление стрелками и сигналами на станции с путевым развитием;
- управление устройствами контроля прохода в тоннели;
- сигнализацию положения управляемых и контролируемых объектов;
- контроль состояния помещений установками пожарной и охранной сигнализации.
2.2 Устройства СУРС размещают в помещениях:
- диспетчерского пункта станции (ДПС);
- дежурного по станции (ДСП);
- аппаратной, релейной, кроссовой, радиоузла, щитовой и др.;
- вентиляционных и насосных установок.
В помещении ДПС размещают:
- автоматизированное рабочее место диспетчера станции (АРМ ДПС);
- автоматизированное рабочее место дежурного по станционному посту ЭЦ (АРМЭЦ) на станции с путевым развитием;
- аппаратуру установок пожарной и охранной сигнализации;
- устройства включения сирен;
- устройства связи и громкоговорящего оповещения;
- видеоконтрольные устройства;
- цифровые электрочасы с секундным или пятисекундным отсчетом времени;
- станции управления вентиляционными и насосными установками;
- станции управления разъединителями контактной сети (на станции с путевым развитием).
В помещении ДСП размещают средства связи и громкоговорящего оповещения по отдельному заданию.
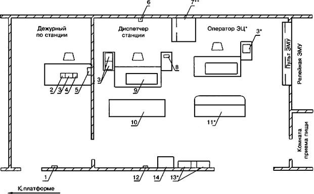
Примерная схема расположения оборудования в помещениях ДПС и ДСП приведена на рисунке 1.

Рисунок 1 - Схема расположения оборудования в помещениях ДПС станции с путевым развитием
1 - часы электрические вторичные; 2 - абонентская установка связи; 3 - пульт связи; 4 - пульт связи дополнительный; 5 - коммутатор громкоговорящего оповещения; 6 - устройство включения сирен; 7 - пульт громкоговорящего оповещения; 8 - пульт управления ВКУ; 9 - пульт СУРС; 10 - стойка с ВКУ; 11 - устройства (АРМ) централизации; 12 - табло часовое; 13 - пульт управления разъединителями контактной сети; 14 - аппаратура установок пожарной и охранной сигнализации
* На промежуточных станциях оборудование не устанавливается. Рабочее место оператора отсутствует.
** В зависимости от типа выбранного оборудования возможна установка на столе диспетчера.
2.3 Помещения ДПС должны отвечать следующим требованиям:
- помещения ДПС должны быть смежными и располагаться в уровне платформы с максимальным приближением к ней;
- ДПС на станциях с путевым развитием располагать со стороны путевого развития, а дополнительное помещение или кабину дежурного по станции - в уровне платформы с противоположной по отношению к ДПС стороны станции;
- помещения должны удовлетворять требованиям технической эстетики, иметь шумопоглощающую отделку, рабочее и аварийное освещение, вентиляцию и кондиционирование воздуха.
Помещение ДПС должно иметь дополнительную дверь шириной 1200 мм для монтажа оборудования.
3 Теленаблюдение, связь
3.1 Зоны теленаблюдения на станции принимать согласно 5.13.
3.2 Каждой телекамере должно соответствовать свое ВКУ. Допускается несколько телекамер (кроме телекамер на площадках эскалаторов) коммутировать на одно ВКУ.
Размещение ВКУ на отдельной стойке должно соответствовать расположению контролируемых зон на плане станции и обеспечивать видимость всех ВКУ с рабочего места диспетчера.
3.3 Телекамеры должны обеспечивать передачу изображений с четкостью не менее 460 строк при уровне освещенности контролируемых зон не ниже установленных для применяемых телевизионных установок. При этом влияние источников света на снижение качества изображения на ВКУ должно быть минимальным.
3.4 Размещение телекамер на верхней и нижней площадках эскалаторов должно обеспечивать обзор гребенок всех эскалаторов одновременно.
На пассажирских платформах телекамеры должны устанавливаться по одной оси на расстоянии 100-150 мм от края платформы и на высоте не менее 2200 мм. При этом должна обеспечиваться видимость номера маршрута поезда.
3.5 Телекамеры устанавливать на конструкциях, обеспечивающих регулировку и жесткое фиксирование положения телекамеры.
Крепление конструкции и кольца рассчитывать на нагрузку 1500 Н.
3.6 В ДПС предусматриваются виды связи согласно приложению 5.13А.
4 Эскалаторы
4.1 На пульте СУРС должны быть предусмотрены:
- экстренная остановка эскалаторов;
- сигнализация о работе эскалаторов;
- световая (мигающая) и звуковая сигнализация остановки эскалаторов.
4.2 Подключение аппаратуры для реализации указанных в п.4.1 функций выполнять согласно электрическим схемам управления эскалаторами, разработанным (или согласованным) предприятием - поставщиком эскалаторов.
4.3 Цепи остановки и сигнализации эскалаторов в пульте СУРС должны быть выделены в отдельные функциональные устройства и иметь самостоятельные каналы связи со схемами управления эскалаторов.
|
Из за большого объема этот материал размещен на нескольких страницах:
1 2 3 4 5 6 7 8 9 10 11 12 13 14 15 16 17 18 19 20 21 22 23 24 25 26 27 28 29 30 31 32 33 |



