Как заработать свои первые деньги?
Слушайте больше на Подкасте Михалыча для молодежи
** В указанных диапазонах допускаемые нагрузки от одной металлической опоры шириной не менее 25 мм должны быть уменьшены вдвое.

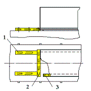
Рисунок 3 – Зоны передачи нагрузок на настил пола платформы
Если нагрузка от опор превышает допустимые значения, то каждая грузовая единица должна устанавливаться на две поперечные подкладки, изготовленные из досок сечением не менее 50 х 150 мм и длиной, равной ширине платформы. Допускается применение подкладок, составленных по высоте из двух досок толщиной не менее 35 мм, соединенных между собой и с полом платформы не менее чем четырьмя гвоздями.
7 На платформах с дерево-металлическим настилом пола в случае возвышения металлического листа над уровнем деревянного настила пола более 5 мм груз устанавливают на подкладки, изготовленные из досок толщиной не менее 25 мм (рисунок 4,а). Каждую подкладку крепят к полу платформы не менее чем 4 гвоздями диаметром 4…5 мм.

Рисунок 4- Установка груза на дерево-металлический пол:
а) на двух подкладках; б) без подкладки
В случае, если возвышение металлического листа над плоскостью деревянного настила пола платформы не превышает 5 мм, допускается деревянные ящики и грузы на основаниях или ложементах из дерева при расположении устанавливать без подкладок (рисунок 4,б).
8 Грузы с плоской опорой от поступательных перемещений в продольном направлении закрепляют упорными брусками, распорными и упорными рамами, устанавливаемыми вплотную к основанию груза (рисунок 5), а также растяжками и обвязками.

Рисунок 5
1, 2 – упорный брусок, 3 – салазки
Допускается крепление грузов на деревянных салазках посредством установки упорных брусков под скошенную часть салазок, расположенных по продольной оси вагона (рисунок 6).

Рисунок 6
1 – брус упорный; 2 – обвязка
Упорный брусок должен быть затесан под углом скоса салазок и обеспечивать контакт с салазками на высоту не менее 50 мм. При угле скоса салазок менее 45о, груз дополнительно фиксируют по месту обвязкой из проволоки диаметром 6 мм в 2 нити.
Если салазки грузов расположены поперек вагона или груз имеет отдельные опоры, то упорные бруски должны устанавливаться вплотную к днищу ящика или к частям груза с плоской поверхностью, обеспечивая высоту поверхности контакта не менее 50 мм (рисунок 7).
а) б)

Рисунок 7 –Установка упорных брусков:
а – монолитных; б – составных: по высоте
1 – упорный брусок
Допускается на платформе составлять упорные бруски по высоте из двух брусков. Верхние бруски прикрепляют к нижним тем же количеством гвоздей, что и нижние бруски к полу платформы (см. рисунок 7б).
При невозможности закрепить бруски к полу платформы с дерево-металлическим настилом, а также в полувагонах, распорные и упорные деревянные рамы собирают с помощью строительных скоб из прутка диметром 8…10 мм или накладных досок толщиной не менее 25 мм ( рисунок 8).

Рисунок 8 – Установка упорных и распорных рам в полувагоне:
1 – упорный брус; 2 – распорный брус;3 – скоба строительная; 4 – доска накладная
9 При восприятии распорными брусками продольных нагрузок на через упорные, работающие на смятие поперек волокон (рисунок 9), количество упорных или распорных брусков должно быть не менее, указанного в таблице 3.

Рисунок 9 – Установка распорных и упорных брусков и рам для крепления грузов
в вагонах от поступательных смещений
1 – брус упорный; 2 – брус распорный
Таблица 3 – Количество упорных брусков в зависимости от их сечения и массы груза
Сечение бруска, мм | Масса груза или группы грузов, т | |||||||||
5 | 10 | 15 | 20 | 25 | 30 | 35 | 40 | 45 | 50 | |
50х100 | 3 | 6 | - | - | - | - | - | - | - | - |
80х100 | 2 | 3 | 5 | 6 | 8 | - | - | - | - | - |
100х100 | 2 | 3 | 4 | 5 | 6 | 7 | 8 | - | - | - |
100х120 | 1 | 2 | 3 | 4 | 5 | 6 | 7 | 8 | - | - |
100х150 | 1 | 2 | 3 | 3 | 4 | 5 | 6 | 7 | 8 | - |
120х150 | 1 | 2 | 2 | 3 | 4 | 4 | 5 | 6 | 7 | 8 |
150х150 | 1 | 2 | 2 | 3 | 3 | 4 | 4 | 5 | 5 | 6 |
160х180 | 1 | 1 | 2 | 2 | 2 | 3 | 3 | 4 | 4 | 5 |
200х200 | 1 | 1 | 2 | 2 | 2 | 2 | 3 | 3 | 3 | 3 |
Для других сечений брусков и массы грузов суммарная площадь контакта брусков должна быть проверена расчетом по методике, приведенной в главе 1 настоящих ТУ.
Для обеспечения необходимой площади контакта упорных и распорных брусков с грузом бруски затесывают по месту (рисунок 10,а). Допускается наращивание брусков по высоте установкой подкладок (см. рисунок 10,б) или установка промежуточных упорных брусьев 3 (см. рисунок 10,в). Промежуточный упорный брус прикрепляют к основному брусу не менее, чем четырьмя гвоздями.

Рисунок 10 - Установка упорных брусков: а) – с подрезом бруска,
б) - на подкладке), в) - с промежуточным упорным брусом
1 – брус упорный; 2 – доска подкладная, 3 – брус упорный промежуточный
10 Крепление грузов брусками с упором в ложемент допускается только в направлении продольной оси ложемента (рисунок 11). Такое крепление допускается только в поперечном направлении.

Рисунок 11 – Рекомендуемое крепление груза на ложементе
упорными брусками
1 – брус упорный: 2 - обвязка
11 Для крепления грузов от продольных смещений в вагоне допускается использовать наклонные обвязки, которые концами закрепляется за увязочные устройства вагона, а средней частью охватывает торцовую часть груза (рисунок 12).

Рисунок 12 – Установка наклонных обвязок для крепления деревянных ящиков: 1-обвязка; 2 – брусок; 3 – скоба строительная
При использовании для крепления груза такой обвязки, в каркас ящика забивают строительные скобы из прутка диаметром 8...10 мм. Скобу снизу подкрепляют вертикально установленным бруском сечением не менее 50 х 100 мм. Брусок устанавливают в распор между скобой и полом вагона и прибивают к ящику 4 гвоздями Ø4 х 100 мм.
Между грузами в продольном направлении должны быть установлены распорные рамы. Каждый элемент распорной рамы прибивают к полу платформы не менее чем 3 гвоздями диаметром 5 мм каждый. В полувагоне элементы распорной рамы соединяют строительными скобами из прутка диаметром 8…10 мм или накладными досками сечением не менее 22 х 100 мм.
Длина распорных брусков в распорных рамах от продольных смещений в полувагонах должна быть не более 1700 мм.
12 От поперечных смещений в вагоне груз должен быть закреплен распорными брусками. Бруски устанавливают в распор между боковыми бортами вагона и грузом.
Грузы, имеющие коэффициент запаса устойчивости от опрокидывания 1,1…1,25 закрепляют обвязками из проволоки. При этом каждый груз (группу грузов) массой до 5 т закрепляют двумя поперечными обвязками из проволоки диаметром 6 мм в две нити, массой от 5…8 т - в четыре нити, массой 8…10 т – в шесть нитей каждая.
При установке грузов или упорных брусьев вплотную к торцовому борту платформы в торцовые стоечные скобы должны быть установлены короткие деревянные стойки (рисунок 13).

Рисунок 13 – Установка груза у торцового борта платформы
1 – стойка; 2 – подкладка выравнивающая; 3 – упорный брусок; 4, 5 – распорные бруски
13 Размещаемые в вагонах грузы одной или несколькими группами размещают симметрично относительно продольной плоскости симметрии вагона (рисункиГрузы устанавливают вплотную друг к другу.


Рисунок 14 Рисунок 15
1,2 – брусок упорный 1 – брусок упорный; 2 – брусок
распорный; 3 – стойка короткая

Рисунок 16 Рисунок 17
1 – брусок упорный; 1 – брусок упорный;
2 – брусок распорный; 2,3,4 – брусок распорный;
3 – стойка короткая; 4 – обвязка 5– стойка короткая; 6 – обвязка


Рисунок 18 Рисунок 19
1 – брусок упорный; 2 – растяжка; 1 – брусок упорный; 2 – растяжка;
3 – обвязка; 4 – стойка короткая 3 – обвязка; 4 – стойка корокая

Рисунок 20 Рисунок 21
1 – упорный брус; 2 – распорный брус; 1 - упорный брус; 2, 3 – обвязки;
3 – распорная рама


Рисунок 22 Рисунок 23
1 – брус упорный; 2 – рама распорная; 1 брус упорный; 2 – брус распорный;
3 – обвязка 3 - обвязка
14 Необходимое количество элементов крепления грузов (упорных и распорных брусков, проволочных растяжек и обвязок, гвоздей) определяют с учетом несущей способности отдельного элемента крепления.
Под несущей способностью элемента крепления понимается масса грузов, удерживаемых от смещения этим элементом крепления.
Нормативные значения несущей способности элементов крепления грузов, включая торцевые борта платформ, приведены в таблицах 4 – 11 в зависимости от суммарной массы груза в вагоне и типа крепления.
Суммарная несущая способность всех элементов крепления, закрепляющих группу грузов в вагоне, должна быть больше или равна общей массе груза в группе.
При оценке несущей способности наклонной обвязки (рисунок 12) она принимается за две растяжки.
Таблица 4 - Масса груза, удерживаемого торцовым бортом платформы, т
Общая масса груза в вагоне, тс | Состояние торцового борта платформы | |
не подкреплен стойками | подкреплен короткими деревянными стойками | |
До 10 вкл. | 2,5 | 6,2 |
Свыше 10 до 30 вкл. | 2,8 | 7,1 |
Свыше 30 до 40 вкл. | 33 | 8,3 |
Свыше 40 до 50 вкл. | 4,0 | 10,0 |
Свыше 50 | 4,0 | 11,1 |
Примечание. Данные таблицы использовать только при размещении грузов, относящихся к настоящей главе
|
Из за большого объема этот материал размещен на нескольких страницах:
1 2 3 4 5 |


